Ayuntamiento
REGLAMENTO MUNICIPAL REGULADOR DEL MERCADO MUNICIPAL DE ABASTOS EN EL MUNICIPIO DE MIGUELTURRA.
TÍTULO I. DISPOSICIONES GENERALES
Artículo 1. Objeto
1.- El presente reglamento, adaptado a la Directiva 2006/123/CE del Parlamento Europeo y del Consejo de 12/12/2006 relativa a los servicios en el mercado interior, tiene por objeto, de conformidad con la legislación estatal y autonómica, regular la actividad comercial que se desarrolla en el mercado de abastos de Miguelturra de titularidad municipal.
2.- Queda excluida del presente reglamento la regulación de la venta ambulante o no sedentaria, entendiendo la misma como aquella actividad realizada por comerciantes fuera de un establecimiento comercial permanente, cualquiera que sea su periodicidad y el lugar donde se celebre, que se regirá por lo establecido en la ordenanza municipal de venta ambulante o no sedentaria, en el Real Decreto 199/2010, de 26 de febrero, por el que se regula el ejercicio de la Venta Ambulante o no sedentaria, y resto de normativa de estatal y autonómica de aplicación.
Artículo 2.- Ámbito de aplicación.
La aplicación del presente Reglamento se circunscribe a la actividad del Mercado de Abastos del término municipal de Miguelturra.
Artículo 3.- Servicio público del Mercado Municipal.
El servicio público de mercado que presta el Ayuntamiento, consiste en la afectación de bienes de dominio público, de forma que se puedan instalar comerciantes en las condiciones que fije el órgano municipal competente para la venta de artículos autorizados, ofreciendo a los ciudadanos la posibilidad de encontrar productos en condiciones adecuadas de calidad, sanidad, salubridad y precio, todo ello con objeto de satisfacer el interés público.
Artículo 4.- Competencia municipal.
La regulación del Mercado Municipal de Abastos contenida en este reglamento se basa en las competencias que a los municipios concede el artículo 25 de la Ley 7/1985 de 2 de abril, reguladora de las Bases de Régimen Local, en su redacción conferida mediante la ley 27/2013, de 27 de diciembre, racionalización y sostenibilidad de la Administración Local, en relación con el artículo 4 del mismo texto legal, y el Reglamento de Servicios de las Corporaciones Locales de 17 de junio de 1955, en especial, las competencias sobre mercado, abastos, defensa de usuarios y consumidores, en materia de protección de la salubridad pública, de gestión del dominio público local, de policía urbanística y de defensa del ornato público y la seguridad en lugares públicos.
Artículo 5.- Exacciones fiscales.
Los aspectos fiscales relacionados con el ejercicio de la actividad, se regirán por lo establecido en las ordenanzas correspondientes.
Artículo 6. De las instalaciones del Mercado Municipal
La actividad comercial de mercado se realizará en los puestos destinados al efecto en el edificio sito en C/ Carnaval, sin perjuicio de la existencia de almacenes e instalaciones auxiliares relacionados con los mismos.
Artículo 7. Emplazamientos.
El Ayuntamiento de Miguelturra, determinará el número y superficie de los puestos para el ejercicio de la actividad comercial en el Mercado Municipal. En cualquier caso, los puestos de venta no se situarán en lugares que dificulten el acceso y la circulación de personas.
Artículo 8. Sujetos.
La actividad comercial en el mercado podrá ejercerse por toda persona física o jurídica que se dedique a la actividad del comercio al por menor y reúna los requisitos exigidos en la presente ordenanza y otros que, según la normativa, les fuera de aplicación.
Artículo 9. Intervención administrativa municipal.
1.- Cualquiera que fuera el tipo de gestión del mercado, el Ayuntamiento ejercerá en los puestos de venta la necesaria intervención administrativa, la vigilancia sanitaria y cuantas funciones impliquen ejercicio de autoridad y sean de su competencia.
2.- La intervención administrativa del Ayuntamiento se dirigirá a:
a) El mantenimiento de las instalaciones del Mercado en buen estado constructivo, higiénico y sanitario.
b) Asegurar el abasto de los artículos de consumo de primera necesidad.
c) La calidad de los productos ofrecidos en venta y la fidelidad en el despacho de los que se expendan a peso o medida.
d) La normalidad de los precios y la libre competencia entre los suministradores y vendedores.
Artículo 10. Productos objeto de venta.
En el Mercado Municipal se podrán comercializar, con carácter general:
a) Productos de Pescado, entendiendo por tal toda clase de pescado fresco y congelado, pescado salado, seco o remojado, mariscos, así como otra clase de artículos precocinados en los que el pescado o el marisco constituya una parte importante de los mismos.
b) Productos de carne que comprenderán toda clase de carnes frescas, congeladas y refrigeradas, derivadas de cerdo, buey, vaca, ternera, carnero, oveja, cordero y cabrito, los precocinados derivados de ellos, tocinería y charcutería.
c) Productos de pollería y caza, que comprenden la venta de gallina, pollo, pavo, patos, ánades, gansos, palomos, conejos, caza menor y caza mayor y aves comestibles en general, y precocinados o productos elaborados en los que el ingrediente principal sea alguno de los artículos citados, así como huevos y caracoles.
d) Productos de frutería y verduras, que comprenden toda clase de verduras, frutas, hortalizas, hierbas alimenticias en general, fresca, seca y congelada, patatas y tubérculos.
d) Legumbres y frutos secos, tales como legumbres secas, cocidas y remojadas, cereales y sus harinas, patatas precocinadas y sus derivados, frutas secas, oleaginosas, arroz, pastas, especias y miel.
e) Pastas, frutos secos y tostados, licores y vinos embotellados, bebidas refrescantes, aceites, cafés, azúcares, margarinas, caramelos, cacaos y sus derivados, chocolates, galletas, bizcochos, dulces, frutas en almíbar, miel, turrones, especias, jamón, conservas, productos lácteos y sus derivados.
f) Panadería: pan ordinario y especiales de todas clases, ensaimadas, roscones, bollería, harina y huevos.
g) Bebidas y alimentos ligeros para el consumo, propios de los bares.
h) Productos lácteos y sus derivados.
TÍTULO II DEL RÉGIMEN DE AUTORIZACION.
Artículo 11. Autorización Municipal.
1.- Para el ejercicio de la actividad comercial en cada puesto o emplazamiento concreto el comerciante deberá obtener autorización por parte del Ayuntamiento, todo ello de conformidad con lo dispuesto en el Titulo III del presente reglamento y el resto de normativa de aplicación.
2.- La cesión de los puestos a los comerciantes para el ejercicio de la actividad se realizará mediante licitación de un contrato administrativo especial.
3.- A los efectos establecidos en la presente ordenanza, la adjudicación del contrato administrativo especial para la cesión y explotación de los puestos, desde la fecha de inicio del contrato, tendrá la consideración de autorización para el ejercicio de la actividad.
4. La duración de la citada autorización será la fijada en el procedimiento de adjudicación, previa valoración de la inversión efectuada y de la remuneración equitativa de los capitales desembolsados por el prestador sin que pueda exceder de cuatro años.
Artículo 12. Contenido de la autorización.
1. En las autorizaciones expedidas por el Ayuntamiento se harán constar entre otros aspectos, los siguientes extremos:
a) La persona física o jurídica titular de la autorización para el ejercicio de la actividad, su DNI o NIF, domicilio a efectos de posibles notificaciones.
b) La duración de la autorización.
c) El puesto o puestos en los que se va a realizar la actividad comercial.
d) Los productos autorizados para su comercialización.
2. Cuando la autorización municipal sea concedida a una persona física podrán hacer uso de ella en nombre del titular el cónyuge o persona unida a éste en análoga relación de afectividad, así como sus hijos y empleados dados de alta en la Seguridad Social.
3. En el caso de personas jurídicas, podrán hacer uso de la autorización los socios y los empleados de la entidad que estén de alta en la seguridad social.
Artículo 13. Transmisión de la autorización.
La autorización será transmisible, previa comunicación al Ayuntamiento, sin que esa transmisión afecte a su periodo de vigencia, y sin perjuicio de la necesidad de cumplimiento de los requisitos para su ejercicio y demás obligaciones que ello pudiera conllevar y que vengan impuestas por las disposiciones aplicables.
Artículo 14. Revocación de la autorización.
Las licencias y autorizaciones pueden ser revocadas en los siguientes supuestos:
- Si los titulares de las licencias o autorizaciones incumplen los requisitos o condiciones en virtud de los cuales les fueron otorgadas.
- Si cambian o desaparecen las circunstancias que determinaron el otorgamiento de las licencias o autorizaciones, o si sobrevienen otras nuevas circunstancias que, en el caso de haber existido, habrían comportado su denegación.
- Si los establecimientos no se han adaptado a las nuevas normas que los afecten, dentro del plazo que se haya otorgado con esta finalidad.
Artículo 15. Extinción de la autorización.
Las autorizaciones se extinguirán por:
a.- Cumplimiento del plazo para el que ha sido concedida la autorización.
b.- Muerte o incapacidad sobrevenida del titular que no le permita ejercer la actividad, o disolución de la sociedad en su caso.
c.- Renuncia expresa o tácita a la autorización.
d.- Pérdida sobrevenida de cualquiera de los requisitos previstos en el reglamento como necesarios para solicitar la autorización o ejercer la actividad.
e.- Revocación por incumplimiento de las obligaciones fiscales y de la seguridad social.
f.- Por revocación por otras causas previstas legal o reglamentariamente.
TITULO III DEL PROCEDIMIENTO DE OTORGAMIENTO LA AUTORIZACIÓN
Artículo 16. Garantías del procedimiento.
De conformidad con lo establecido en la normativa de aplicación, el procedimiento para la concesión de la autorización municipal para el ejercicio de la actividad ha de garantizar la transparencia, imparcialidad y publicidad adecuada de su inicio, desarrollo y fin.
Artículo 17. Solicitudes y plazo de presentación.
1. Las personas físicas o jurídicas que deseen ejercer la actividad comercial en el Mercado Municipal, habrán de presentar en el Registro del Ayuntamiento, sede electrónica o a través de la ventanilla única de la Directiva europea de Servicios, además del resto de documentación establecida en el pliego de cláusulas administrativas, la siguiente:
1) Documento de compromiso de cumplimiento de los requisitos establecidos en el presente reglamento y demás normativa de aplicación, estar en posesión de la documentación que así lo acredite a partir del inicio de la actividad y mantener su cumplimiento durante el plazo de vigencia de la autorización.
2) Declaración, o compromiso en su caso, de estar dado de alta en el epígrafe correspondiente del impuesto de actividades económicas y estar al corriente en el pago del impuesto o, en caso de estar exentos, estar dado de alta en el censo.
3) Acreditación de estar al corriente en el pago de las cotizaciones de la seguridad social o autorización para la comprobación telemática con otras administraciones públicas de los datos declarados.
4) Los prestadores procedentes de terceros países deberán acreditar el cumplimiento de las obligaciones establecidas en la legislación vigente en materia de autorizaciones de residencia y trabajo.
5) Estar en posesión del certificado correspondiente acreditativo de la formación como manipulador de alimentos.
6) Tener contratado un seguro de responsabilidad civil que cubra los riesgos de la actividad comercial por el importe que se fije por parte del órgano de contratación.
Asimismo, en el caso de personas jurídicas, se habrá de presentar una relación acreditativa de los socios o empleados que van a ejercer la actividad en nombre de la sociedad así como la documentación acreditativa de la personalidad y poderes del representante legal de la persona jurídica.
2. El plazo para la presentación de las solicitudes será el establecido en el procedimiento de autorización.
3. Para la valoración de los criterios recogidos en el artículo 18 de este reglamento, será necesario aportar la documentación acreditativa.
Artículo 18. Criterios para la concesión de las autorizaciones.
1.- Como criterios para la adjudicación de los puestos y, por tanto, para la concesión de la autorización, se podrán tener en cuenta consideraciones en materia de salud pública, seguridad de los trabajadores, de protección del medio ambiente, de conservación del patrimonio cultural, de carácter económico y cualquier otra razón imperiosa de interés general, tal y como se definen en el artículo 3.11 de la Ley 17/2009, de 23 de noviembre, de libre acceso a las actividades de servicio y su ejercicio.
2.- Así, el órgano municipal competente, con el fin de conseguir una mayor calidad de la actividad comercial y el servicio prestado, la mejor planificación sectorial, el mejor prestigio, la mayor seguridad de la actividad comercial, la libre competencia como medio de procurar la economía en los precios y asegurar y garantizar el abastecimiento de artículos de primera necesidad, su calidad y su fidelidad en el peso, podrá tener en cuenta los siguientes criterios para la adjudicación de los puestos:
1) El capital destinado a inversiones directamente relacionadas con la actividad y su grado de amortización en el momento de la presentación de la solicitud.
2) Las instalaciones con las que se llevará a cabo la prestación del servicio.
3) La protección del medio ambiente en la prestación del servicio.
4) Factores de salud y seguridad en el trabajo en la prestación del servicio.
Artículo 19. Resolución.
1. El plazo para resolver las solicitudes de autorización será el fijado en el procedimiento que se tramite al efecto, sin que pueda exceder de seis meses.
2. Transcurrido el plazo para resolver por parte del ayuntamiento sin haberse notificado la resolución, los interesados podrán entender desestimada su solicitud.
3. Las autorizaciones para el ejercicio de la actividad comercial, serán concedidas por acuerdo del órgano municipal competente para resolver el procedimiento de adjudicación.
TITULO IV.- DERECHOS Y OBLIGACIONES DE LOS PRESTADORES DEL SERVICIO Y DE LOS USUARIOS.
Artículo 20.- Derechos de los prestadores de servicio que ejerzan la actividad comercial.
• Las personas titulares de las autorizaciones municipales para el ejercicio de la actividad comercial en el mercado, gozarán de los siguientes derechos:
1. Ocupar los puestos de venta para los que dispongan de autorización.
2. Ejercer pública y pacíficamente, en el horario y condiciones marcadas en la autorización, la actividad comercial autorizada por el Ayuntamiento.
3. Recabar la debida protección de las autoridades locales y Policía Municipal, para poder realizar la actividad autorizada.
4. A la expedición por parte del ayuntamiento del correspondiente documento identificativo.
5. Presentar las reclamaciones y sugerencias para el mejor funcionamiento de la actividad.
6. Al ejercicio de la actividad al frente del puesto por sí mismo o, en su caso, por las personas autorizadas de conformidad con lo establecido en el presente reglamento.
7. A que la fecha en que se autorice la actividad comercial no se modifique por el ayuntamiento, salvo que coincida con una festividad o acontecimientos especiales, en cuyo caso, el órgano competente municipal lo pondrá en su conocimiento con la antelación suficiente.
8. A que exista en el recinto del Mercado Municipal una zona común destinada a la recogida de los residuos causados por la venta.
Artículo 21.- Obligaciones de los prestadores de servicio que ejerzan la actividad comercial.
1.- Sin perjuicio de las obligaciones derivadas de la normativa sectorial, y especialmente en materia de comercio minorista y de defensa de usuarios y consumidores, las personas titulares de autorizaciones municipales para el ejercicio de la actividad en los mercados municipales vendrán obligados a:
a) Respetar las condiciones exigidas en la normativa reguladora de los productos objeto de comercio, en especial de aquellos destinados a alimentación humana.
b) Tener expuesto al público, en lugar visible, la placa identificativa y los precios de venta de las mercancías, que serán finales y completos (impuestos incluidos).
c) Tener a disposición de la autoridad competente las facturas y comprobantes de compra de los productos objeto de comercio.
d) Tener a disposición de las personas consumidoras y usuarias las hojas de quejas y reclamaciones, de acuerdo con el modelo reglamentariamente establecido, así como el resto de documentación establecida en los artículos 22 y 23 de la ley 17/2009, de 23 de noviembre, sobre el libre acceso a las actividades de servicios y su ejercicio.
e) No utilizar el uso de megafonía o de cualquier otra fuente de ruido que sobrepase el límite de decibelios establecidos en la normativa vigente en materia de ruido.
f) Estar al corriente de las tasas que las ordenanzas municipales establezcan.
g) Conservar en buen estado los puestos, obras e instalaciones utilizados.
h) Ejercer la venta ininterrumpidamente durante las horas señaladas, con el debido esmero, respetando en todo caso el horario que se encuentre establecido para las distintas actividades que se hayan de desarrollar en el mercado.
i) Observar la máxima pulcritud en su aseo personal y utilizar en su trabajo vestuario propio para su función y en correcto estado de limpieza.
j) Cuidar de que sus respectivos puestos estén limpios y mantengan las condiciones de ornamento, higiene y salubridad debidas, especialmente durante el horario de venta al público.
k) Contribuir a la limpieza, vigilancia y conservación del mercado.
l) Abonar el importe de los daños y perjuicios que el propio titular, familiares o dependientes causen en las instalaciones o edificio del mercado.
m) Facilitar los datos que les sean solicitados por el Encargado del Mercado.
n) Dotar el puesto o local de un contenedor para almacenamiento de basura y despojos durante el horario de venta.
o) Abstenerse de depositar bultos en los pasillos destinados al público, ni siquiera temporalmente.
p) Tener a la venta todos los artículos que expongan, sin que puedan reservar parte de los mismos.
q) No lavar el pescado destinado a la venta en los puestos, debiendo estar bien extendido sobre los cuévanos. Conservarlo en frío, mediante hielo o expositor o mostrador frigorífico. No mezclar pescados de distintas procedencias, debiendo separarse colocando un cartel o pizarra con la leyenda que los distinga, a saber: "Playa", "costa", "norte", "altura", o las demás clasificaciones que existan. No exponer el pescado congelado fuera del expositor o mostrador congelador. No vender pescado que no tenga la talla mínima para comercializarse.
r) Mantener los puestos abiertos en los días en que esté abierto al público el Mercado, salvo los períodos de vacaciones o autorización expresa del Ayuntamiento.
s) Cumplir cuantas otras obligaciones resulten del presente reglamento o del resto de la normativa de aplicación.
Artículo 22.- Derechos de los consumidores y usuarios.
1.- La actividad comercial en el mercado deberá ejercerse con todo respeto a los derechos de los consumidores y usuarios tal y como se encuentran reconocidos en la normativa vigente en materia de defensa de consumidores y usuarios.
2.- En especial, deberán observarse los derechos de información de los consumidores o usuarios tal y como se configuran en el artículo 22 de la Ley 17/2009, de 23 de noviembre, de libre acceso a las actividades de servicios y su ejercicio.
Artículo 23.- Publicidad en el ejercicio de la actividad comercial.
El ejercicio de publicidad en la actividad comercial de los puestos del mercado se regirá por lo establecido en la Ordenanza Municipal de Publicidad Exterior , la ley 34/1988 de 11 de noviembre General de Publicidad y el Decreto 917/1967, de 20 de abril, sobre Publicidad Exterior y normativa autonómica de aplicación.
TÍTULO V. DEL FUNCIONAMIENTO DEL MERCADO MUNICIPAL.
CAPITULO I. FECHAS Y HORARIOS.
Artículo 24.- Temporadas.
1.- Se establecen en el Mercado Municipal, a efectos del presente reglamento, la temporada de Invierno y de Verano.
2.- Comprende la temporada de invierno desde el día 1 de noviembre hasta el día 1 de marzo.
3.- Comprende la temporada de verano desde el día 2 de marzo hasta el día 31 de octubre.
Artículo 25.- Horarios.
1.- El horario del Mercado Municipal será el siguiente: Lunes: de 10 h.a 14 h., Martes. de 7,30 h a 14,30 h, Miércoles, jueves y sábado: de 8,30 h a 14 h, y viernes: de 7 h a 15 h. A propuesta de los vendedores, y previo acuerdo con el ayuntamiento, se podrá fijar un horario de apertura por la tarde.
2.- Los días festivos, salvo acuerdo expreso en contrario, el Mercado Municipal permanecerá cerrado.
3.- Los horarios podrán ser modificados mediante acuerdo del Ayuntamiento y los vendedores, previo expediente tramitado para justificar su oportunidad y conveniencia.
CAPITULO II. PUESTOS DE VENTA.
Artículo 26.- Puestos de venta.
A efectos de este Reglamento, se denomina puesto de venta a cada establecimiento independiente del Mercado Municipal, con las características, superficie y destino fijadas para el ejercicio de la actividad comercial.
Artículo 27.- Consideración jurídica de los puestos de venta.
Todos los puestos fijos y locales del mercado son propiedad del Ayuntamiento y, por su condición de bienes de servicio público, serán inalienables, inembargables e imprescriptibles.
Artículo 28.- Clasificación de los puestos de venta.
Los puestos de venta destinados a vendedores se clasifican en:
- Puestos fijos.
- Puestos eventuales.
Artículo 29.- Puestos fijos.
1.- Son puestos fijos los destinados a la venta al detalle de artículos autorizados, situados de forma permanente en el interior del mercado.
2.- El número, emplazamiento, características y dimensiones de los puestos fijos figuran como anexo a este reglamento.
Artículo 30.- Clasificación de los puestos fijos.
1.- Los puestos fijos del mercado municipal de abastos se ajustarán a la clasificación que se consignan a continuación, pudiendo expenderse en cada uno de ellos los géneros que se señalan en el artículo 10 del presente Reglamento:
a) Pescado.
b) Carne
c) Frutas y Hortalizas.
d) Productos alimentarios en general.
e) Bar-Cafetería.
f) Productos alimentarios secos.
2.- En la licitación de los puestos se fijarán los productos autorizados para la venta.
3.- El Ayuntamiento, podrá otorgar autorizaciones para la colocación de puestos especiales, entendiendo por tales aquellos que no se encuentren en la relación anterior, pero siempre dentro del marco competencial municipal.
Artículo 31.- Puestos eventuales.
Se considerarán puestos eventuales aquellos situados en las inmediaciones del Mercado Municipal destinados a la realización de venta ambulante o no sedentaria por parte de comerciantes fuera de los puestos permanentes. Estos puestos se regirán por lo establecido en el Real Decreto 199/2010, de 26 de febrero, por el que se regula el ejercicio de la Venta Ambulante o no sedentaria, y la Ordenanza Municipal de Venta Ambulante o no sedentaria.
CAPITULO III. FUNCIONAMIENTO DEL MERCADO.
Artículo 32.- Encargado del Mercado.
En el Mercado Municipal existirá un encargado, que será un empleado público municipal, y que tendrá a su cargo la gestión administrativa y técnica necesaria para el funcionamiento del servicio y la vigilancia del cumplimiento de este reglamento municipal, de cuantas disposiciones afecten a la actividad que allí se desarrolla y de los acuerdos que emanen de los órganos municipales competentes. En particular son cometidos del Encargado del Mercado Municipal los siguientes:
a) La apertura y cierre del Mercado de Abastos.
b) Cuidar que la actividad en el interior del Mercado se realice con normalidad, armonía con las disposiciones legales vigentes, dando cuenta a la Alcaldía o a la Concejalía Delegada de las anomalías que observare.
c) Velar por el buen orden y limpieza del Mercado por el adecuado uso de las instalaciones de aprovechamiento común y el racional consumo de agua y energía eléctrica.
d) Procurar por la conservación del edificio y sus instalaciones, proponiendo las medidas más adecuadas para el mejor funcionamiento del Mercado.
e) Atender las quejas y reclamaciones del público y titulares de los puestos, y transmitirlas al órgano correspondiente del Ayuntamiento.
f) Llevar un libro registro en el que hará constar el número de puesto, nombre y apellidos del titular, fecha de adjudicación, artículos autorizados para la venta, modificaciones realizadas previa autorización en el puesto y otras circunstancias que se consideren de interés.
g) Cuantos otros cometidos resulten de este reglamento o le fueren encomendados por el órgano municipal competente.
Artículo 33.- De la intervención municipal del peso y la medida.
1.- Los instrumentos de pesar o medir utilizados en los mercados deberán ajustarse a la normativa de aplicación.
2.- En cualquier momento, el Encargado del Mercado o los agentes de la autoridad podrán verificar la exactitud de tales instrumentos, debiendo hacerlo como mínimo una vez al año.
3.- Se procurará el uso de balanzas automáticas o electrónicas, colocadas de forma que los compradores puedan leer en ellas el precio, peso e importe total de los géneros que adquieran.
Artículo 34.- De las obras e instalaciones en el Mercado Municipal.
1.- Cuantas obras e instalaciones se realicen en los puestos y almacenes, de forma que hayan de resultar unidas de modo permanente al piso, quedarán de propiedad municipal.
2.- No podrán realizarse obras ni instalaciones de ninguna clase en los puestos y almacenes sin autorización expresa municipal.
3.- Serán de cuenta de los titulares de los puestos toda obra de construcción y adaptación de los puestos y almacenes, así como cuantas otras instalaciones hayan de realizarse en los mismos, y su conservación y adecuación a la actividad a desarrollar.
4.- El Ayuntamiento podrá exigir una fianza complementaria para los casos de autorización de obras que supongan sustitución de elementos o modificación de los puestos.
Artículo 35.- De los gastos de cuenta de los titulares de los puestos.
Será de cuenta del titular los servicios de agua, gas, energía eléctrica, cámara frigorífica y recogida de residuos, conforme a lo dispuesto en las correspondientes ordenanzas fiscales municipales.
Artículo 36.- De la inspección sanitaria.
La inspección sanitaria de los productos se llevará a cabo por los servicios veterinarios correspondientes, de acuerdo con la normativa de aplicación.
TITULO VI. INSPECCIÓN Y RÉGIMEN SANCIONADOR DE LA ACTIVIDAD EN EL MERCADO MUNICIPAL .
Artículo 37. Inspección y control.
1. Los servicios municipales procederán a la inspección y control de las infracciones al presente reglamento, sin perjuicio de otras atribuciones competenciales establecidas en la legislación vigente, y en especial en el Real Decreto Legislativo 1/2007, de 16 de noviembre, por el que se aprueba el texto refundido de la Ley General para la Defensa de los Consumidores y Usuarios y otras leyes complementarias.
2.- Corresponderá al facultativo veterinario y a los organismos competentes, la vigilancia sanitaria de los artículos que se expendan o almacenen en el Mercado. A tal efecto deberán:
1. Comprobar el estado sanitario de los artículos alimenticios de origen animal o vegetal.
Inspeccionar las condiciones higiénico-sanitarias de los puestos, instalaciones y dependencias de los mercados.
2. Proceder al decomiso de los géneros que no se hallen en las debidas condiciones para el consumo.
3. Levantar actas como consecuencia de las inspecciones.
4. Emitir informes facultativos sobre el resultado de las inspecciones y análisis practicados.
3.- La inspección sanitaria actuará de modo permanente y por su propia iniciativa. Asimismo, atenderá las denuncias que se le dirijan sobre el estado o calidad de los productos vendidos en el Mercado de Abastos y dictaminará acerca de la procedencia o improcedencia de la reclamación, extendiendo un certificado acreditativo del informe emitido, para que el perjudicado pueda justificar el derecho a ser indemnizado por el vendedor.
4. Como resultado de la inspección, los agentes actuantes deben extender un acta, en la cual los interesados pueden hacer constar su disconformidad y observaciones. El acta debe notificarse a los interesados y al órgano administrativo competente.
5. Si el resultado de la inspección constata irregularidades, el órgano competente, después de valorar su incidencia en la seguridad de las personas o los bienes o en la convivencia entre los ciudadanos, puede optar entre:
a) Requerir las modificaciones o mejoras necesarias para reparar las irregularidades, fijar un plazo para efectuarlas y abrir un expediente sancionador si no se realizan dentro del plazo establecido.
b) Acordar directamente la apertura del correspondiente expediente sancionador, con la adopción, en su caso, de las medidas provisionales, sin perjuicio de las medidas provisionales previas a la apertura del expediente.
6. Cuando sean detectadas infracciones de índole sanitaria, se dará cuenta inmediata de las mismas, para su tramitación y sanción si procediese, a las autoridades sanitarias que correspondan.
7. El Ayuntamiento, en el ejercicio de sus funciones de vigilancia, podrá inspeccionar productos, actividades e instalaciones, así como solicitar a los vendedores cuanta información resulte precisa en relación a los mismos.
8. En el caso de que los productos puestos a la venta puedan ocasionar riesgos para la salud o seguridad de los consumidores o usuarios, supongan fraude en la calidad o cantidad, no se identifiquen o se incurra en falsificaciones o se incumplan los requisitos mínimos para su comercialización, la autoridad que ordene la incoación del expediente podrá acordar su intervención cautelar, en los términos establecidos en la normativa de aplicación.
Artículo 38. Procedimiento sancionador y recuperación de oficio de los bienes de dominio público utilizados sin autorización.
No se podrá imponer sanción alguna sin la previa tramitación del correspondiente expediente sancionador, según lo dispuesto en el Real Decreto 1.398/1993, de 4 de Agosto y normas concordantes.
Artículo 39. Infracciones .
1. En defecto de normativa sectorial específica, tienen la consideración de infracciones administrativas las acciones y omisiones que vulneren las normas contenidas en el presente reglamento, así como la desobediencia de los mandatos y
requerimientos de la Administración municipal o de sus agentes dictados en aplicación de la misma.
2. Las infracciones se clasifican en leves, graves y muy graves, de conformidad con la tipificación establecida en los artículos siguientes.
A) Infracciones leves:
a) La falta de limpieza de los puestos y su entorno, y la falta de aseo en los vendedores.
b) El cierre no autorizado del puesto de venta, sin causa justificada, por un periodo de uno a cinco días.
c) Las discusiones o altercados que se produzcan en el ejercicio de la actividad.
d) La negligencia respecto al esmerado aseo y limpieza de las personas y puestos.
e) No cumplir las instrucciones del Encargado del Mercado.
f) El comportamiento no ajustado a las buenas costumbres y normas de convivencia.
g) Arrojar las basuras al suelo y depositar los desperdicios o basuras en otros sitios que no sean los indicados por el Encargado Municipal del Mercado, o hacerlo sin el envase apropiado.
i) No comunicar al Encargado municipal del Mercado los cambios de domicilio del titular del puesto.
j) Cualquier infracción de este reglamento no calificada de infracción grave o muy grave.
B) Infracciones graves:
a) La reincidencia de una infracción leve de la misma naturaleza en el plazo de un año.
b) La comisión de tres infracciones leves en el plazo de un año.
c) La defraudación en la cantidad o calidad de los artículos o mercancías vendidas.
d) No tener en sitio perfectamente visible los precios de los artículos puestos a la venta.
e) Los altercados o alteraciones del orden público que, a juicio del encargado, produzcan escándalo.
f) El desacato ostensible a las disposiciones o mandatos del encargado del mercado.
g) Las modificaciones de la estructura, instalación de los puestos, así como la instalación de vitrinas-frigoríficas sin la correspondiente autorización o incumpliendo las normas dictadas al respecto por el municipio.
h) Causar dolosa o negligentemente daños al edificio, puestos o instalaciones.
i) No conservar el albarán justificativo de la compra durante siete días, para su posible comprobación y control.
j) El arrendamiento del puesto incumpliendo lo establecido en el presente Reglamento.
k) El traspaso o cesión del puesto sin cumplir las condiciones de comunicación estipulados en este Reglamento.
l) Vender artículos distintos de los autorizados en su autorización en función de lo dispuesto en este Reglamento.
m) No estar en posesión del carné de manipulador de alimentos cuando la actividad que desarrolle así lo requiera.
n) La venta sin licencia o fuera de los lugares asignados al efecto.
o) El reiterado incumplimiento de las obligaciones sanitarias.
p) El cierre del puesto por más de cinco días, sin justificación.
q) El desacato de las disposiciones dimanantes de la autoridad municipal.
C) Infracciones muy graves:
a) La reiteración de tres infracciones graves, de cualquier naturaleza, dentro de un año.
b) El abandono injustificado del puesto durante un periodo de tres meses.
Artículo 40. Sanciones .
1. Las infracciones podrán ser sancionadas como sigue:
a) Las leves con apercibimiento o multa de hasta 750 euros.
b) Las graves con multa de 751 a 1.500 euros.
c) Las faltas muy graves se sancionarán con multas de 1.501 a 3.000 €, pudiéndose proceder a la suspensión temporal de la autorización, y hasta la revocación de la autorización que se hubiese otorgado. No obstante la responsabilidad exigible al titular del puesto, en el supuesto de faltas imputables directamente a los colaboradores, éstos podrán ser sancionados conforme a lo establecido en el presente artículo.
En caso de faltas muy graves, además, podrá el Ayuntamiento proceder, si el interesado en el plazo de quince días incumpliere la orden, a retirar los elementos no autorizados o cuya autorización hubiere caducado o hubiere sido revocada, a retirar de oficio las instalaciones mediante la actuación de los servicios municipales competentes y a cuenta de quien sea titular de la autorización, todo ello de conformidad con lo establecido en el Reglamento de Bienes de las Corporaciones Locales. Por ello, se les girará una liquidación en función del coste del servicio de desmontaje, transporte o custodia de los elementos, calculados para cada supuesto en función de los medios que se empleen en el mismo.
No será necesario el transcurso del plazo indicado a que alude el párrafo anterior, cuando razones de carácter urgente aconsejen la eliminación de las instalaciones.
En caso de instalación de un puesto sin la correspondiente autorización, se procederá a la retirada inmediata de las instalaciones de conformidad con lo establecido en los artículos 70 y ss. del Real Decreto 1372/1986, de 13 de junio, por el que se aprueba el Reglamento de Bienes de las Entidades Locales.
No estará sujeto a la tramitación de procedimiento sancionador, ni tendrá la consideración de sanción la retirada de las instalaciones de los puestos que no cuenten con la oportuna autorización.
2. Para la graduación o calificación de las sanciones se tendrán en cuenta los siguientes criterios:
-El volumen de la facturación a la que afecte.
-La naturaleza de los perjuicios causados.
-El grado de intencionalidad del infractor o reiteración.
-La cuantía del beneficio obtenido.
-La reincidencia.
-El plazo de tiempo durante el que se haya venido cometiendo la infracción.
-El número de consumidores y usuarios afectados.
3. Además de las sanciones previstas en el apartado primero, en el caso de infracciones muy graves se podrá acordar con carácter accesorio para la protección de los intereses implicados, el decomiso de la mercancía que sea objeto de comercio y el decomiso de los puestos, instalaciones vehículos o cualquier medio utilizado para el ejercicio de la actividad.
Artículo 41. Personas responsables.
1- La responsabilidad administrativa por las infracciones al presente reglamento corresponde al titular de la actividad, o en su caso al que la estuviese ejerciendo sin contar con el título habilitante y será compatible e independiente de la responsabilidad civil o penal que, en su caso, pudiera exigírsele.
2. En el caso de que la infracción sea imputada a una persona jurídica, son responsables solidarias las personas físicas que ocupan cargos de administración o dirección que hayan cometido la infracción o que hayan colaborado activamente a la misma, que no acrediten haber hecho todo lo posible, en el marco de sus competencias, para evitarla, que la hayan consentido o que hayan adoptado acuerdos que la posibiliten, hayan cesado o no en su actividad.
Artículo 42. Prescripción.
1. La prescripción de las infracciones recogidas en esta Ordenanza, se producirán de la siguiente forma:
a) Las leves, a los seis meses.
b) Las graves, a los dos años.
c) Las muy graves a los tres años.
El plazo de prescripción comenzará a computarse desde el día que se hubiere cometido la infracción o, en su caso, desde aquel en que hubiese podido incoarse el procedimiento, de conformidad con lo previsto en la Ley de Régimen Jurídico de las Administraciones Públicas y Procedimiento Administrativo Común y en el Reglamento de procedimiento para el ejercicio de la potestad sancionadora.
Interrumpirá la prescripción la iniciación con conocimiento del interesado del procedimiento sancionador.
2. Las sanciones prescribirán:
a) Las impuestas por faltas muy graves a los tres años.
b) Las impuestas por faltas graves a los dos años.
c) Y las impuestas por faltas leves al año.
El plazo de prescripción de las sanciones comenzará a contarse desde el día siguiente a aquél en que adquiera firmeza la resolución por la que se impone la sanción.
Interrumpirá la prescripción la iniciación, con conocimiento del interesado, del procedimiento de ejecución, volviendo a transcurrir el plazo si aquél está paralizado durante más de un mes por causa no imputable al infractor.
TITULO VII. CESIONES TEMPORALES DE LOS PUESTOS VACANTES.
Artículo 43. Cesión temporal.
1. Los puestos vacantes o no adjudicados por el Ayuntamiento podrán cederse temporalmente, si la cesión es solicitada previamente y autorizada por el Ayuntamiento.
A los efectos de este precepto entendemos como cesión temporal aquella que es inferior a 5 años.
2. La cesión temporal podrá realizarse con los siguientes fines:
a) Promoción comercial.
b) Campañas especiales.
c) Pruebas de mercado.
d) Campañas solidarias.
En cualquier caso, la actividad deberá respetar la normativa vigente de seguridad, higiene y funcionamiento del Mercado Municipal.
Artículo 44. Condiciones de la ocupación temporal.
La ocupación temporal estará condicionada al cumplimiento de las normas de funcionamiento del Mercado, incluidas las relativas a higiene, seguridad, respeto a los horarios y coexistencia con los concesionarios habituales.
El cedente temporal deberá asumir la responsabilidad de mantener el espacio en las condiciones exigidas, y desarrollar la actividad autorizada durante todo el periodo de cesión.
El Ayuntamiento podrá revocar la cesión temporal si se produce un incumplimiento grave de las condiciones establecidas.
Artículo 45. Procedimiento para la cesión temporal.
1. Los interesados deberán presentar su solicitud con al menos 48 horas de antelación a la fecha deseada.
2. La solicitud debe formalizarse por escrito mediante su presentación en registro, ya se de manera presencial o a través de medios electrónicos. La solicitud deberá ir acompañada de la siguiente documentación:
- Memoria descriptiva de la actividad
- Calendario propuesto para el desarrollo de la misma
- DNI, nombre y apellidos de la persona responsable de la actividad.
- Carta o justificante de pago de la tasa.
Recibida la solicitud, los servicios técnicos y jurídicos podrán requerir al solicitante la subsanación o ampliación de la documentación presentada.
3. Si existen varias solicitudes para los mismos puestos en las mismas fechas, tendrá prioridad las solicitudes presentadas por las asociaciones u organizaciones sin ánimo de lucro.
De persistir el empate la adjudicación se realizará conforme a los siguientes criterios, por este orden:
1. Preferencia para las actividades en las que el Ayuntamiento participe, colabore o que estén alineadas con campañas municipales previamente programadas.
2. Por orden de registro de la solicitud
DISPOSICIÓN ADICIONAL
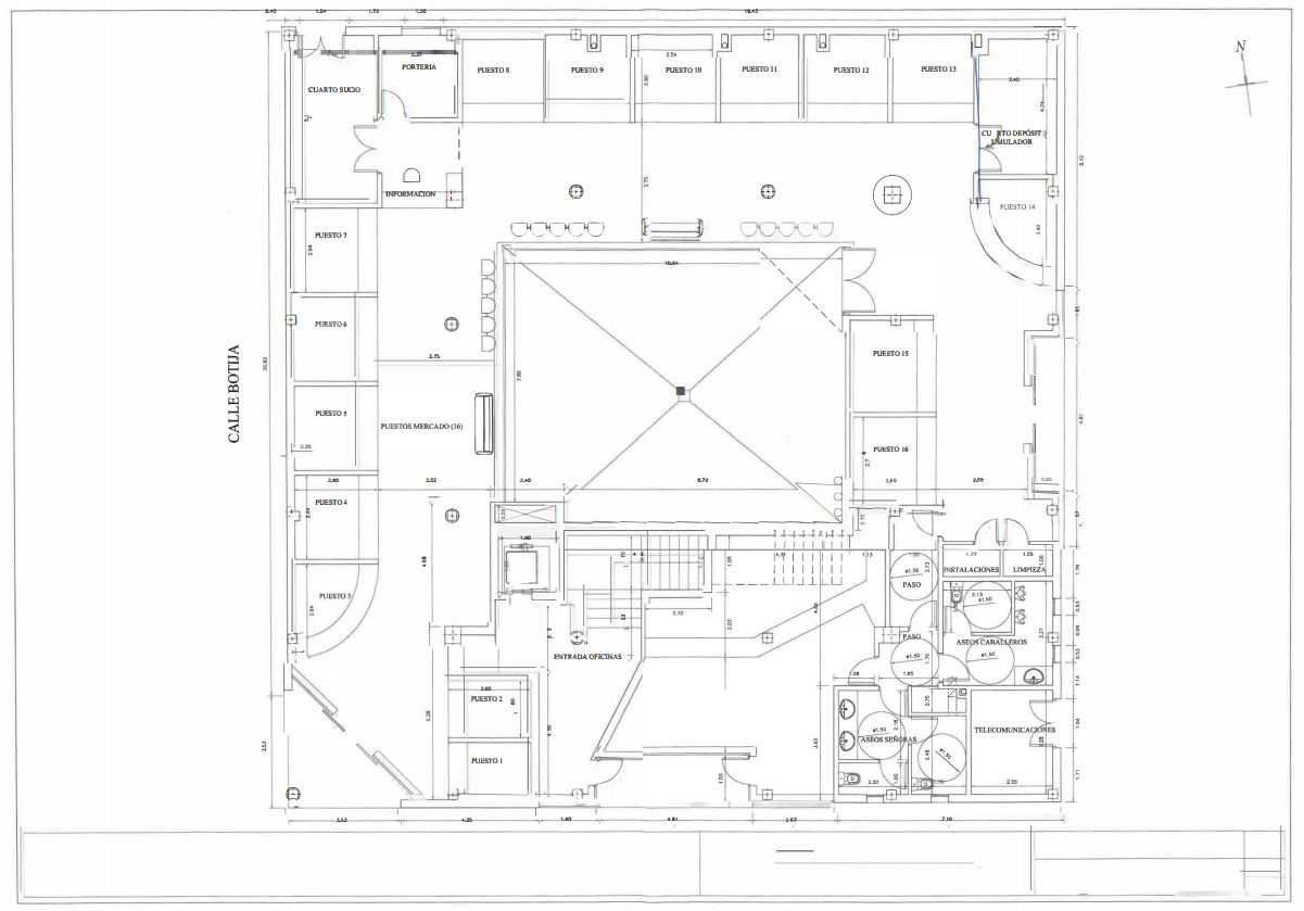
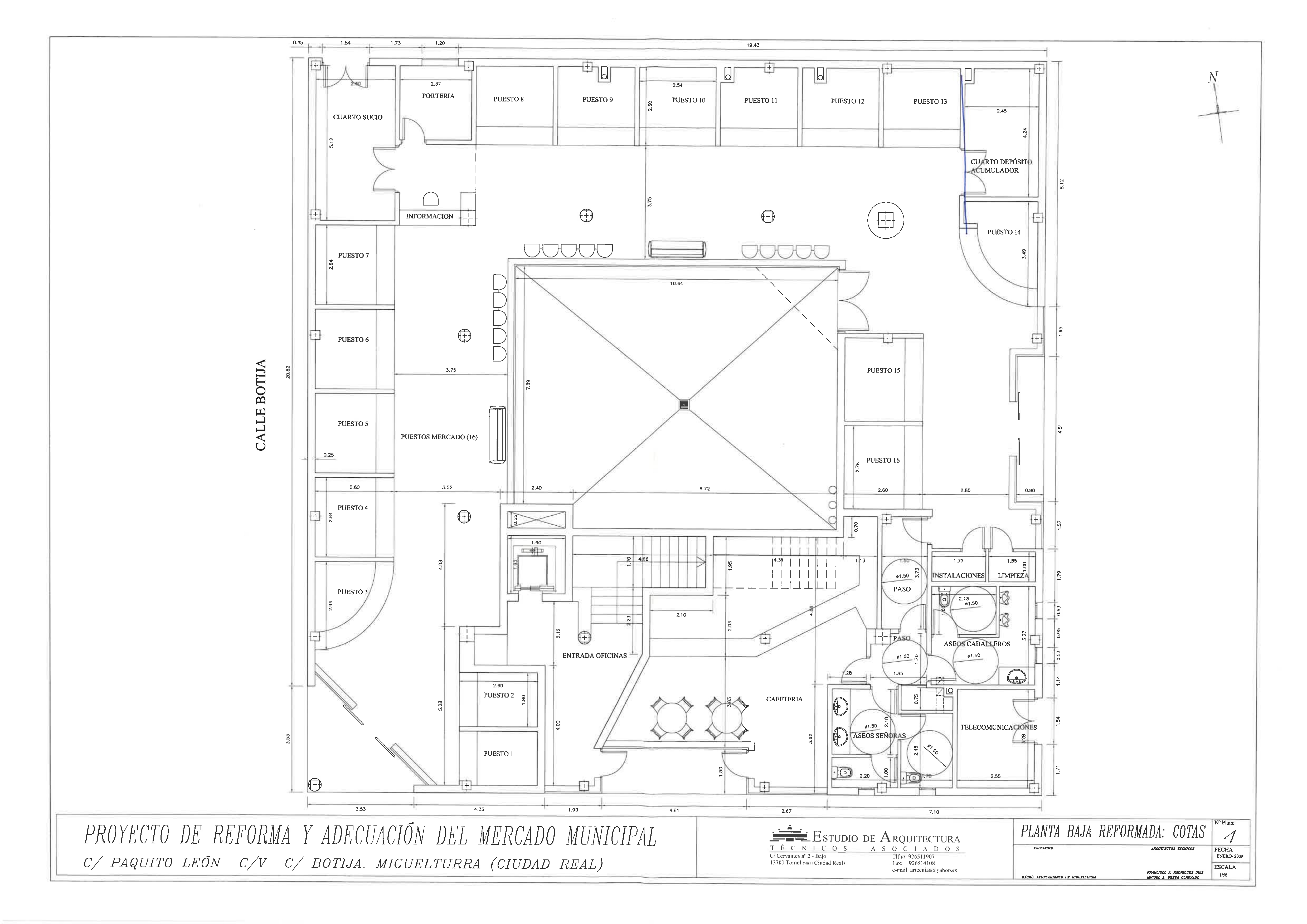
Primera. Planos.
Se adjunta como Anexo I al presente Reglamento plano de los puestos del Mercado Municipal.
DISPOSICIÓN FINAL
Primera.
Una vez producida la entrada en vigor del presente reglamento, y finalizado el plazo de adjudicación de los actuales titulares de los puestos del Mercado, el órgano municipal competente incoará el procedimiento para su nueva adjudicación ajustada a los criterios expuestos en este reglamento.
Segunda.
El presente reglamento entrará en vigor a los quince días hábiles de su publicación íntegra en el Boletín Oficial de la Provincia, de conformidad con lo establecido en el artículo 70.2 de la Ley 7/85 de 2 de Abril. A su entrada en vigor, queda derogado el Reglamento Municipal publicada en el B.O.P. de Ciudad Real nº 63, de 26 de mayo de 2010.
Se acompaña al texto del reglamento el plano indicativo de los puestos como anexo n.º 1
DILIGENCIA.- Para hacer constar que el presente Reglamento fue aprobado inicialmente por el Ayuntamiento Pleno en sesión de 27 de noviembre de 2025 y publicada su aprobación definitiva en el BOP N.º 22 de 3 de febrero de 2026.
SECRETARÍA GENERAL
(última actualización el 4 de febrero de 2026)

Plaza de España, 1 13170. Miguelturra
Teléfono: 926 24 11 11 | 926 24 11 12 . Fax: 926 24 17 46
Correo electrónico: contactar@ayto-miguelturra.es
www.miguelturra.es